Willkommen in diesem neuwertig präsentierten Einfamilienhaus vor den Toren Braunschweigs – eine seltene Gelegenheit für anspruchsvolle Käufer, die Wohnkomfort auf gehobenem Niveau suchen.
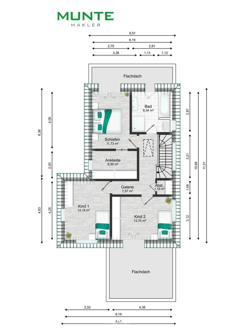
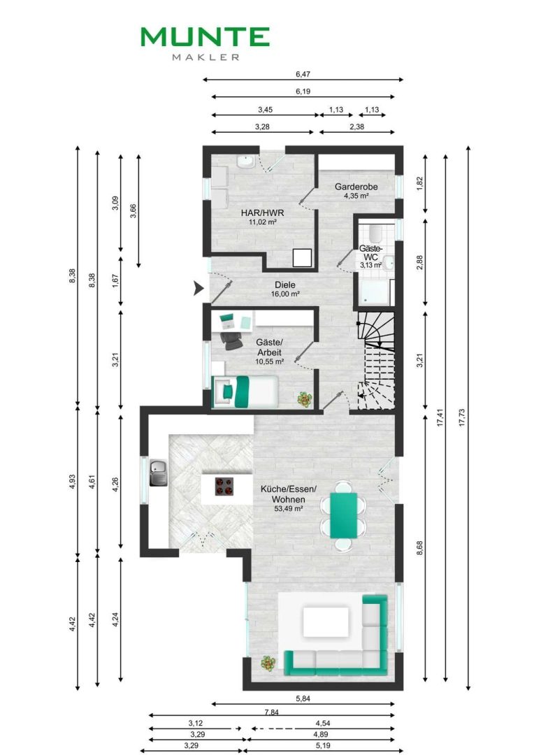
Das großzügig geschnittene Haus überzeugt mit einer Wohnfläche von ca. 160 m², verteilt auf zwei Etagen und insgesamt fünf Zimmern, darunter drei komfortable Schlafzimmer. Hochwertige Fliesen verleihen den Räumlichkeiten ein edles und pflegeleichtes Ambiente, das sich harmonisch in die gehobene Gesamtausstattung einfügt.
Die moderne Einbauküche lädt zum Kochen und Genießen ein.
Im offenen Wohn-Ess-Küchenbereich mit Ausgängen zur überdachten Terrasse fühlt sich die ganze Familie wohl.
Zusätzlicher Komfort im Alltag bietet das Gäste-WC mit Dusche.
Beheizt wird das Haus über eine zuverlässige Gaszentralheizung. Eine Solarthermie-Anlage unterstützt die Warmwasser-Bereitung.
Außen erwartet Sie ein weitläufiges Grundstück von 880 m² mit einem gepflegten Garten – ideal für Familien, die Natur und Ruhe in unmittelbarer Nähe schätzen. Die geräumige Doppelgarage bietet ausreichend Platz für zwei Fahrzeuge sowie zusätzliche Staumöglichkeiten.
Dieses Haus vereint modernen Wohnkomfort mit einer ruhigen Lage und überzeugt durch seinen gepflegten Zustand – ein echtes Zuhause für die ganze Familie.
_


