Das angebotene Reihenhaus befindet sich in Wolfenbüttel, ruhig gelegen in einer gepflegten Nebenstraße, auf einem 276 m² großen Grundstück. Die Immobilie bietet eine großzügige Wohnfläche von ca. 137 m², verteilt auf zwei Etagen und insgesamt vier gut geschnittene Zimmer. Um das Gebäude auf einen höheren energetischen Standard zu bringen, ist langfristig eine Sanierung erforderlich, beispielsweise durch den Austausch der Holzfenster sowie die Dämmung der Fassade und des Daches.
Die Hausflure, die Küche sowie beide Badezimmer sind mit Fliesen ausgestattet; die übrigen Wohnräume verfügen über Teppichböden. Die überwiegend weiß gestalteten/tapezierten Wände vermitteln einen freundlichen und hellen Gesamteindruck. Die Bäder sind farbig gefliest. Elektrische Rollläden mit Zeitschaltfunktion sowie die erst kürzlich installierte Klingelanlage sorgen für zusätzlichen Komfort. Im Untergeschoss befinden sich Holzfenster, während im Obergeschoss die straßenseitigen Fenster im Jahr 2001 durch Kunststofffenster ersetzt wurden.
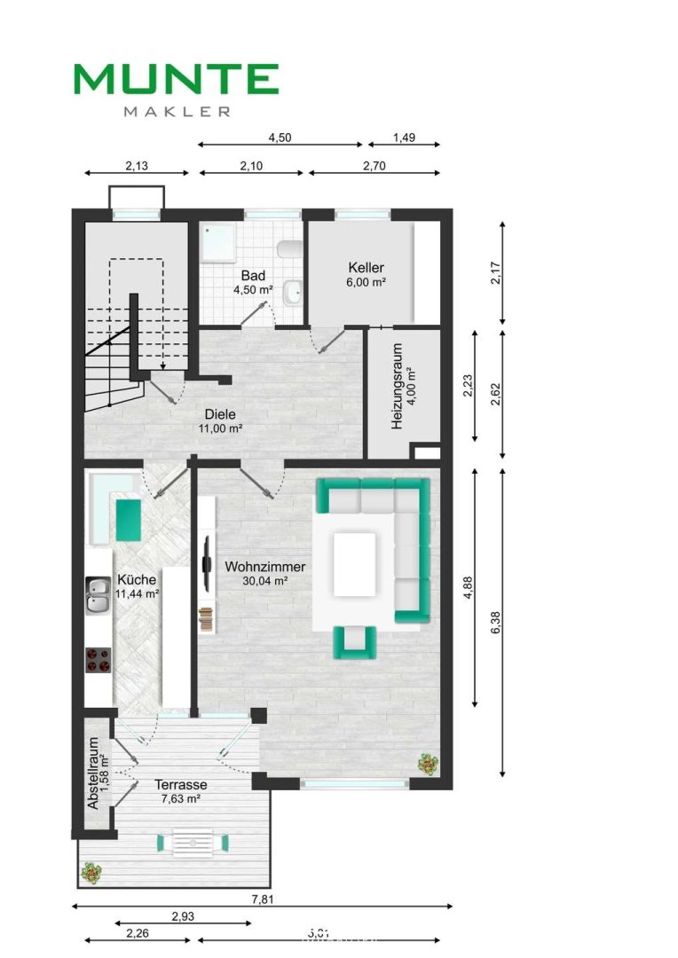
Vom Eingangsbereich gelangen Sie jeweils über eine halbe Treppe sowohl in das Obergeschoss als auch in das Untergeschoss/Erdgeschoss, was dem Grundriss eine offene und zugleich gut strukturierte Raumaufteilung verleiht. (Split-Level)
Im Erdgeschoss liegt rechts die Küche, welche mit einer Einbauküche ausgestattet ist, in der die Warmwasseraufbereitung über einen Boiler erfolgt. Von hier aus betreten Sie direkt die Terrasse. Das angrenzende, lichtdurchflutete Wohnzimmer bietet ebenfalls Zugang zu Terrasse und Garten. Die Terrasse ist teilweise überdacht und mit einer praktischen, manuellen Markise ausgestattet, ideal für sonnige Nachmittage nach dem Feierabend. Eine abschließbare Außenabstellkammer bietet zusätzlichen Stauraum für Gartenmöbel oder Möbelauflagen.
Das große dreifachverglaste Thermofenster im Wohnzimmer eröffnet einen einladenden Blick in den Garten und lässt den Raum besonders wohnlich wirken. Laut Grundriss ist die Wand zwischen Küche und Wohnzimmer nicht tragend, sodass grundsätzlich die Möglichkeit besteht, beide Räume zu einer modernen, offenen Wohnküche zu verbinden. Bitte beachten Sie, dass ein in geplanter Durchbruch vorab durch einen Statiker oder Fachbetrieb geprüft werden sollte.
Gegenüber dem Wohnzimmers befindet sich ein helles Tageslichtbad mit Dusche. Der Flur im Untergeschoss bietet dank kleiner Nischen wertvollen Stauraum z. B. für Einbauschränke. Im Untergeschoss befindet sich außerdem ein Wasch- und Trockenraum, in dem sich auch die im Jahr 2015 erneuerte Gasheizung befindet. Unter der Treppe liegen Stromkasten, Stauraum sowie die Zähler.
Im Obergeschoss erwarten Sie drei Schlafzimmer. Direkt oben rechts befindet sich ein kleiner Abstellraum, ideal als Garderobe oder zusätzlicher Stauraum. Die beiden zum Garten ausgerichteten Schlafzimmer verfügen über Zugang zu einem gemeinsamen, überdachten Balkon mit Westausrichtung, welcher sich besonders für entspannte Abendstunden anbietet. Auch hier steht Ihnen eine praktische Außenabstellkammer zur Verfügung.
Die Schlafzimmer bieten durch ihre Größe und die Aufteilung flexible Nutzungsmöglichkeiten, beispielsweise als Kinder-, Arbeits- oder großzügige Ankleidezimmer. Abgerundet wird das Obergeschoss durch ein weiteres Tageslichtbad, ausgestattet mit zwei Waschbecken und einer Badewanne.
Zur Immobilie gehört zudem eine angrenzende Garage auf dem Grundstück. Das elektrisch betriebene Tor lässt sich per Schlüssel öffnen. Vor dem Haus stehen weitere öffentliche Parkmöglichkeiten für Gäste zur Verfügung. Von der Garage führt eine kleine Treppe direkt in den Garten.
Bitte beachten Sie, dass sich das Haus aktuell noch im teilweise möblierten Zustand befindet. Eine vollständige Räumung ist jedoch zeitnah vorgesehen; der Verkauf erfolgt unmöbliert. Zum Zeitpunkt der Besichtigung wird ein Teil des Mobiliars voraussichtlich noch vorhanden sein.


